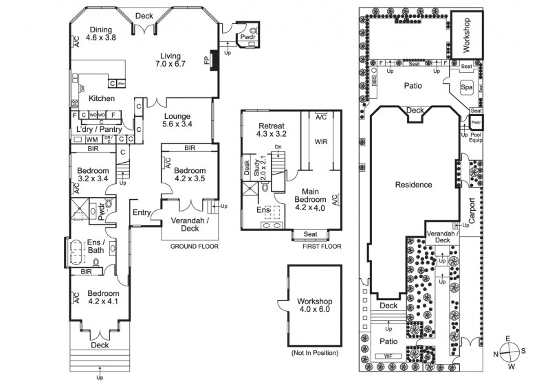
A nicely presented, four bedroom family home located in a quiet pocket of Beaumaris, certainly one for the gardeners with its established gardens in both the front and rear. The floor plan flows well throughout, with an upstairs parents retreat including a large WIR, generous sized ensuite, separate retreat and study, offering excellent separation for the remaining three bedrooms and living areas downstairs. The downstairs bedrooms are located to the front of the home and share a large bathroom. A separate living room offers a second living space downstairs, whilst the large open plan rear includes a generous sized living / dining and kitchen area with a shared laundry / pantry. The large rear windows allow loads of natural light into this area. Beyond the open plan rear, a paved patio flanked by a built-in BBQ area on one side and a glass fenced spa on the other. A terraced lawn area at the back of the yard provides more space for the kids to play or to sit in the shade of the established trees at the rear of the garden. Zoned to Beaumaris North Primary School, Mentone Girls Secondary College and Beaumaris Secondary College.
Comparable sales in this pocket of Beaumaris include 75 Morey St, on 843m sold in January 2026 for a little under the bottom end of this selling range, 18 Comas Rd sold in June 2025 on 618m for $2.4m and 4 Comas Rd sold for $2.32m in June 2025 on 618m.
- Renovated throughout
- Landscaped Gardens
- Large parents retreat
- No Lock up garage
- Low walk score
- No value add

Buyers Agent













