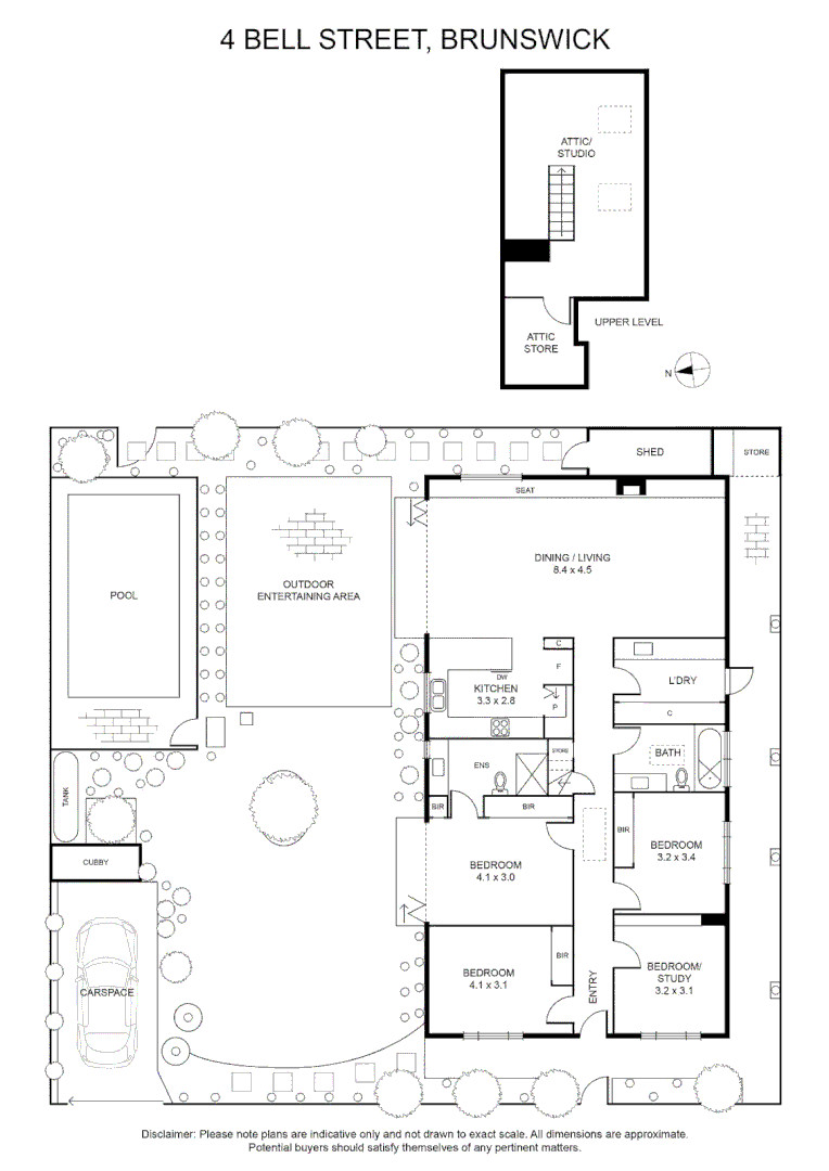
This property has now transacted 4 times in the last 15 years, it has continuously been updated and improved, and now it presents beautifully with a floorplan and accommodation that families looking in the area desire. Slightly different offering with a "side" yard, but the indoor-outdoor flow is appealing and leads out to a nice garden with a swimming pool. If you don't know Brunswick, you might never find Bell St, Brunswick. Unassuming little street, yet it is close to all that Lygon and Sydney roads have to offer. 4 beds, 2 bath, garage and pool on 400+ sqm will draw buyers wanting the complete renovated package close to the action. 117 Union st, Brunswick at $3,388,000 and 63 donald St, Brunswick at $3,200,000 will be good guides but $3.5+ expectation might be a stretch. We'll see!
- Quiet and hidden yet central location
- Walk to it all
- Good family option
- Funny unappealing street
- Tricky square block
- Lacks external appeal

Buyers Agent













