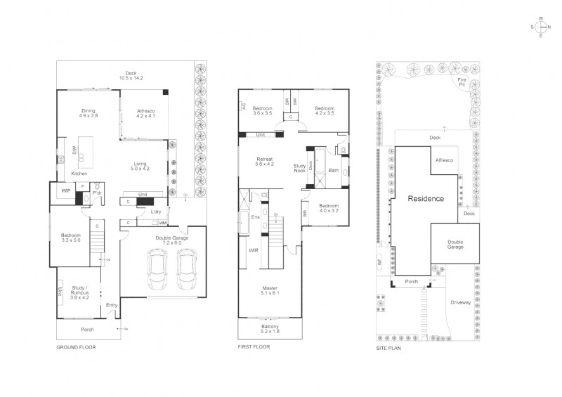
First Impression
Great natural light, and feels very private for the area.
Fantastic open plan living with flow to outdoor space - fantastic for a family with kids.
Car parking is good, which is hard to find in Hampton.
Things we love
- Floorplan works well
- Very Private & Proximity to schools
- Great internal Space
Things to consider
- Proximity to Trains

Buyers Agent













