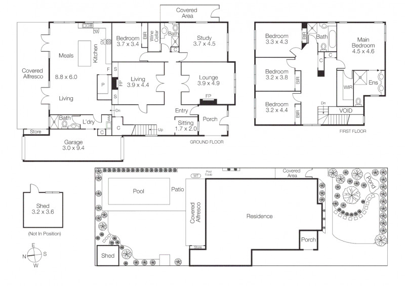
First Impression
Great natural light through the home thanks to its orientation, with a floorplan that is perfectly serviceable but offers scope to improve over time
Move straight in and enjoy it as is, while knowing there’s genuine upside down the track if you want to improve or extend
Position is good without being elite, which is often where the best value sits in Brighton
A smart, liveable home with long term potential that should age well
Things we love
- Very little overlooking out the back & north orientation
- Oversized Pool
- Art Deco Charm
Things to consider
- Could do with an update
- Street is just ok.

Buyers Agent












