First Impression
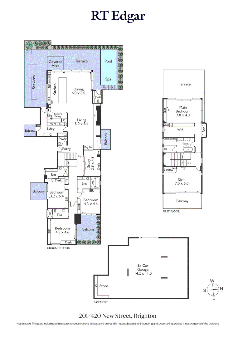
Phenomenal apartment, designed and built by Nick McKimm for himself... and it shows. No shortcuts, no compromises.
It’s one of those homes that just feels easy to live in. Everything flows.
Views are spectacular from almost every angle.
High security, true lock-up-and-leave.
Definitely one worth seeing.
Things we love
- Unbelievable Views of City & East Ranges / Flooded Natural Light
- Two entire floors with elite finishes & wellness retreat
- Pool & Spa in an apartment
Things to consider
- Main Bedroom Upstairs with no lift access
- One living space

Buyers Agent











