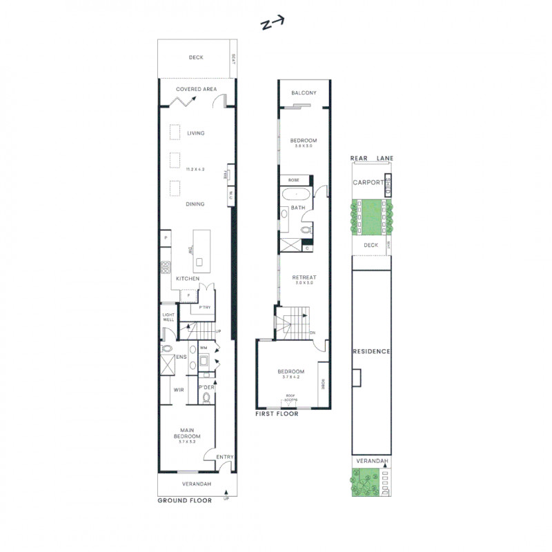
Updated approximately 15–20 years ago, what was once a standard single-fronted Victorian has been thoughtfully and tastefully transformed into a substantial three-bedroom, two-bathroom residence, complemented by two separate living zones and the invaluable inclusion of off-street parking.
The floorplan will resonate strongly with young couples and emerging families seeking scale, functionality and proximity to everything that makes Richmond so compelling. The hard work has been done — the home presents as a complete package with little required from an incoming purchaser. That said, further scope to extend or materially value-add appears limited, making this very much a “what you see is what you get” proposition.
Positioned close to Bridge Road, convenience is undeniable — cafés, retail and transport are at your doorstep. However, buyers should also appreciate that this location comes with the energy and activity synonymous with inner-city living.
Recent comparable results across Richmond suggest value comfortably in the high $1 millions, with competitive conditions potentially pushing the outcome slightly beyond the $2,000,000 mark.
- Good flowing floorplan
- Good accomodation with parking
- Nice finish
- Starting to look dated
- Not much land to work with
- Busy pocket of Richmond

Buyers Agent













