A seriously impressive Brighton holding, but one that still manages to feel relaxed and easy to live in, which is not always the case at this level.
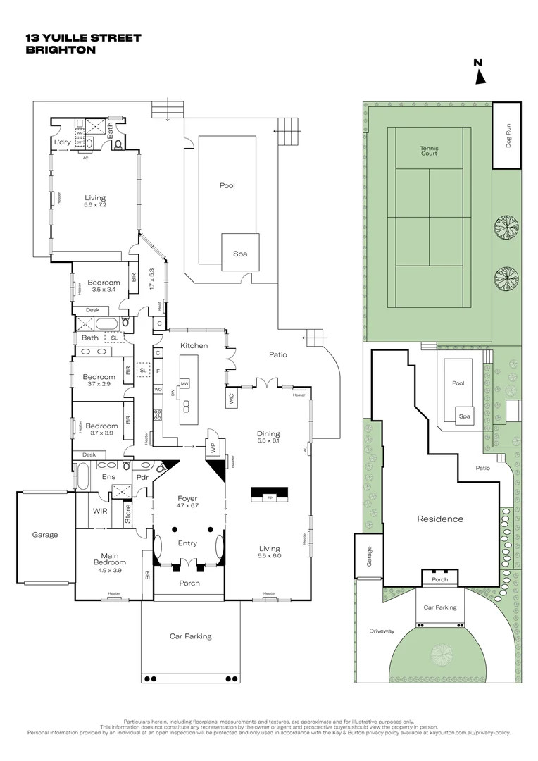
Set on a huge 1,700sqm+ allotment, the scale here is what immediately stands out. It is the kind of landholding you just do not see come up often, especially in a pocket like this.
The home itself has real presence, with a nice nod to Art Deco character, but it has been done in a way that still feels comfortable rather than overly formal. There is a good flow throughout, multiple living zones and a kitchen that does exactly what you want it to, functional, central and built for both everyday use and entertaining.
Accommodation is well balanced with four bedrooms, but it is not a house that relies on numbers. It is more about how it all comes together, and it does that really well.
Outside is where it becomes a bit of fun. Pool, spa and a full size tennis court, which is getting harder and harder to find in Brighton. It is the sort of setup that makes the home feel more like a lifestyle property than just a place to live.
The location ties it all together, a genuinely good Brighton position close to the beach, great schools and the best of Church Street and Were Street.
This is one of those properties that covers a lot of bases. You can move straight in and enjoy it, or you have the land there for something bigger down the track. Either way, it is a very compelling offering.
- Huge Land & Single Level
- Tennis Court & North Facing Rear
- Wide, well positioned street
- Floorplan Feels Disconnected

Buyers Agent











