A well-located Brighton home that will appeal to families wanting something ready to move straight into, particularly with Church Street, Brighton Grammar and Firbank all within easy reach.
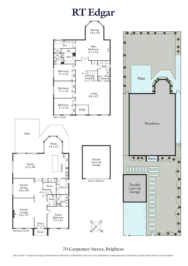
The house itself has good scale with five bedrooms and multiple living zones, and it generally flows well. The rear open-plan area is the highlight and connects nicely to the outdoor space, which is what most buyers in this range are prioritising. It feels functional and easy to live in, which is a big positive.
That said, it’s not without its compromises. The styling leans a little dated in parts and doesn’t quite have the sharpness or finish you’d expect compared to some newer builds at a similar price point. It presents well, but it’s not a standout architecturally.
The position is strong but not elite Brighton, so at the $4.5m–$4.65m level buyers will naturally start comparing it to better streets or more premium homes. It probably sits more in the “very good” category than exceptional.
Overall, a solid family home that does a lot right from a layout and livability perspective, but it will need to be bought at the right price to represent genuine value in what is a competitive bracket.
- Proximity to shops & schools
- Nicely renovated
- Extremely spacious rooms
- Orientation
- Land Size / No Pool

Buyers Agent











