First Impression
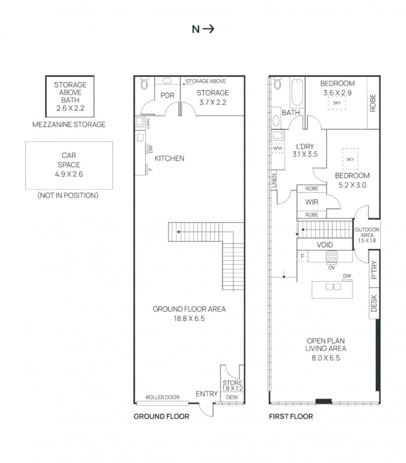
Fabulous converted warehouse feel, flooded with natural light. The floorplan is spacious and can adapt to multiple uses. Ideally suited to business/home use. The residential component is large and well appointed, however due to its configuration the bedrooms lack windows. Difficult to accurately assess its value because of scarce comparables.
Things we love
- Flexible floorplan allowing for multiple uses
- Quiet & convenient location
- Spacious & light-filled
Things to consider
- No windows in bedrooms, only skylights
- No outdoor space

Buyers Agent












