First Impression
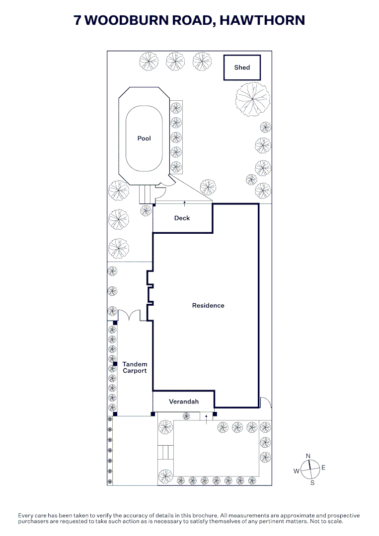
A well presented family home offering good accomodation, indoor and outdoor living with a north facing back yard and pool. An opportunity to add value with updating of the kitchen and bathrooms.
Things we love
- Single level family home
- Opportunity to add value with upgrades to kitchen and bathroms
- North facing back yard with pool
Things to consider
- No Garage just tandem car port
- Small kitchen
Buyers Agent













