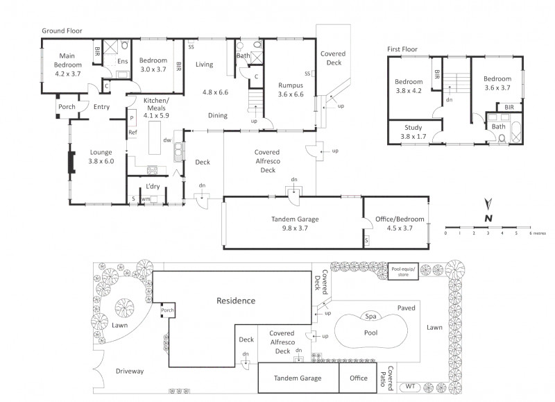
A family home of four bedrooms (two up and two down) with multiple living zones provides loads of space for families of all ages. The home provides comfortable accommodation now and has the added advantage of having scope to further develop the property in the future, sitting on 733m there’s enough room to extend if required. The home also has the flexibility of an outside studio that can easily be used as a home office, fifth bedroom or teenage retreat. Consideration of the open pool area in the back yard, young children would need to be supervised. The addition of a pool fence along the pool paving area would fix this.
Zoned to Cheltenham Primary School, Beaumaris Secondary College and Mentone Girls Secondary College, Cheltenham Station is less than a 1km walk, and the sheltered section of Mentone Beach is also within walking distance or a couple of minutes by car on a hot day.
- Multiple family rooms to suit a large family
- Further value add opportunity
- Outdoor living flexibility
- Floor plan flow
- Some family areas are a bit narrow
- Master robe space limited

Buyers Agent











