First Impression
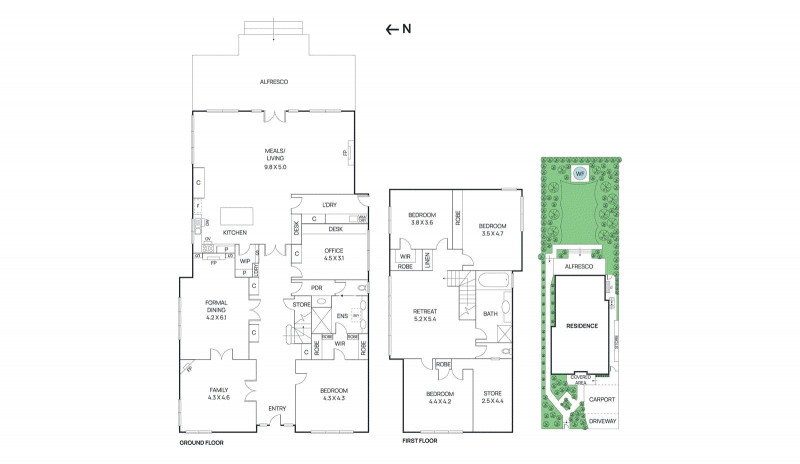
A wonderful family home on 805 sqm of land. Flexible accomodation with formal and informal rooms, study and upstairs retreat area, a large east facing backyard, this home will suit both small and growing families. Well positioned to schools, a short stroll to the camberwell sports ground and junction. Offered for public auction on Sat 21 March with a Price guide of $3,550m-$3,750m. Similar properties in the area have sold between $3.6m-$3.8m.
Things we love
- Great location, close to schools, transport and sports facilities
- Large kitchen, meals & family room looking out to rear east facing backyard
- Good accomodation & upstairs retreat area
Things to consider
- No garage
- It is at a "T" intersection, may not be suitable for all buyers

Buyers Agent













