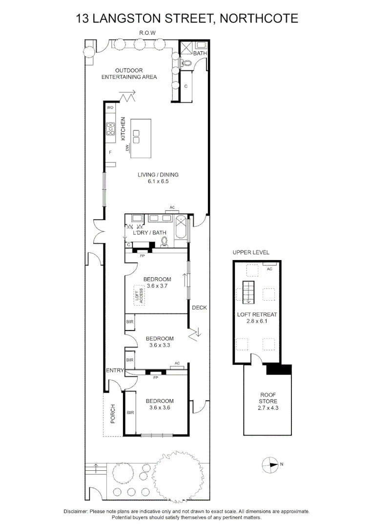
First Impression
Classic single fronted period home in quiet Westgarth location. Situated in a narrow street which can make parking difficult. The renovation is of a high standard and brings light and space to the living areas. Agent's quote is accurate and the property should attract good attention.
Things we love
- Generous bedrooms plus loft & storage
- Quality renovation
- Popular & convenient location
Things to consider
- Tight street
- Small courtyard

Buyers Agent












