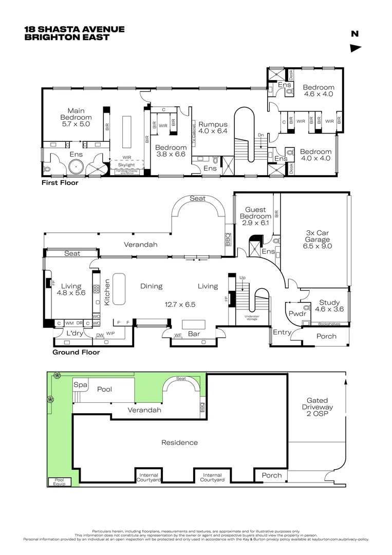
First Impression
This is seriously well executed. The finishes are top tier throughout and you can feel the Jabbour build quality straight away, it’s polished without trying too hard.
Inside is where it wins. Big, bold spaces, high end materials and that bar setup is genuinely cool, not just a token add on. Feels like a house built to entertain properly.
The trade off is outside. For a home at this level there’s not a lot of real usable outdoor space, more show than substance which will matter to some buyers.
Overall it’s a very complete, turn key home with standout interiors, just lacking that same punch externally.
Things we love
- Great Internal Spaces
- Quality of Build
Things to consider
- Land Size Smaller
- Southern Side of Street

Buyers Agent













