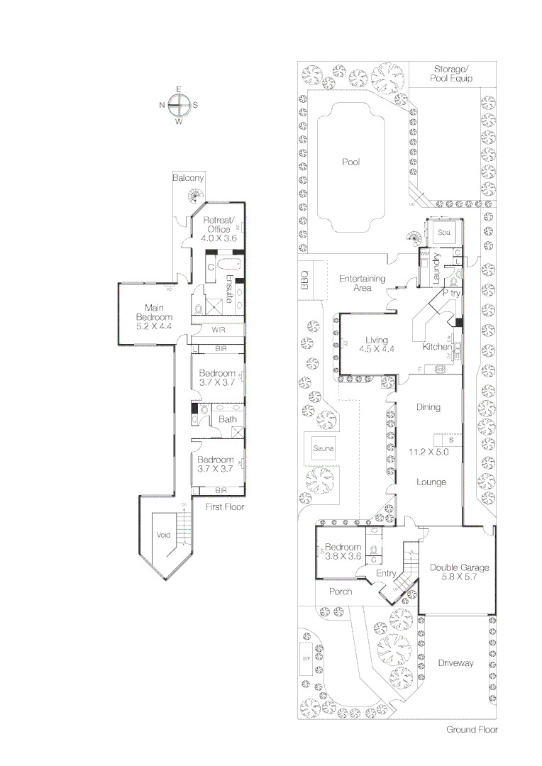
Move in ready, nothing more to do in this family four bedroom home, with large living spaces downstairs along with a guest bedroom or optional home office/study. Upstairs provides an additional two kids bedrooms and a master bedroom with its own private retreat with balcony overlooking the pool below. Loads of natural light through the northern orientation and clever design to capture light throughout the home, the rear kitchen and living area overlooks a covered outdoor entertaining area with pool beyond providing a nice place to relax in the warmer months. An additional terraced lawn area adds versatility to the backyard providing further space for the kids to enjoy. Located in a quiet street off Bay Rd, an easy walk to The Sandringham Village and Station or simply jump on a bus at the end of the street to take you to either the Sandy Village or to Southland. Sandringham beach is less than 1km away. Zoned to Sandringham East Primary School and Sandringham College, with easy access to the many Private Schools across Bayside.
Comparable sales include 20 Victory St on 694m sold for $3.25m in October 2025 and 5 Dreadnought St sold for $3.13m in July 2025 on 699m.
- Move in ready
- Natural Light
- Northern orientation
- No family zone upstairs
- No value add

Buyers Agent













