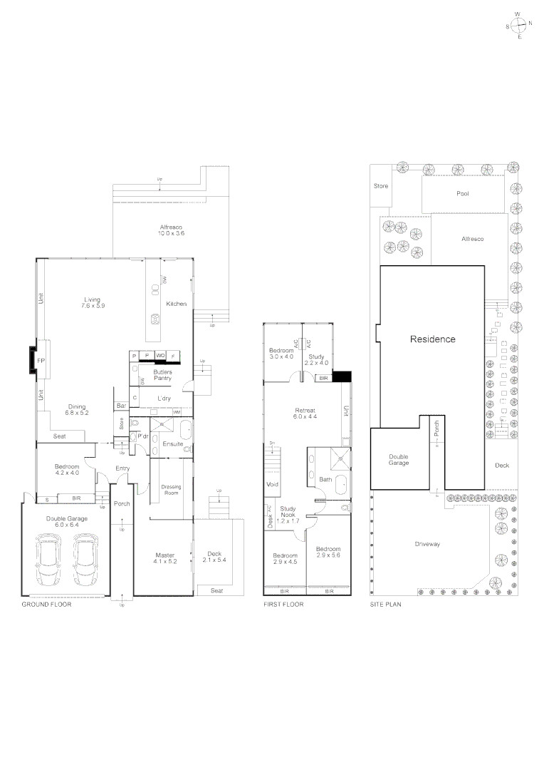
An impressive 5 bedroom home on a 646m block, with a west facing rear. The floor plan flows well throughout the home, offering flexibility to use the second downstairs bedroom as a well sized home office if required. The master bedroom is downstairs with the 3 kids bedrooms located upstairs along with a well sized kids retreat, and a study, plus additional study nook removing any arguments about not getting homework completed! Downstairs offers a large open plan rear area with loads of space for dining, living and a large kitchen with butlers pantry, framed by full height glass windows and sliding doors, allowing heaps of natural light into this area. An undercover alfresco looks across a fully fenced pool with established greenery providing extra privacy.
Located in a quiet central pocket, a 200m stroll to Beaumaris Primary School, less than 500m to the Concourse Shops, an easy walk to either Rickets point beach or the protected end of Mentone beach. Zoned to Beaumaris Primary School, Beaumaris Secondary College and Mentone Girls Secondary College.
Comparable sales include 14 Oak St on 672m selling for $3.055m in September 2025, 121 Dalgetty Rd sold for $ 3.35m on 721m in October 2025, and 17 Haydens Rd sold around the middle of this selling range in December 2025.
- Flexible Floor Plan
- Generous sized family zones
- Natural Light
- No rear lawn area
- Kitchen is a bit spread out
- No Value add

Buyers Agent













