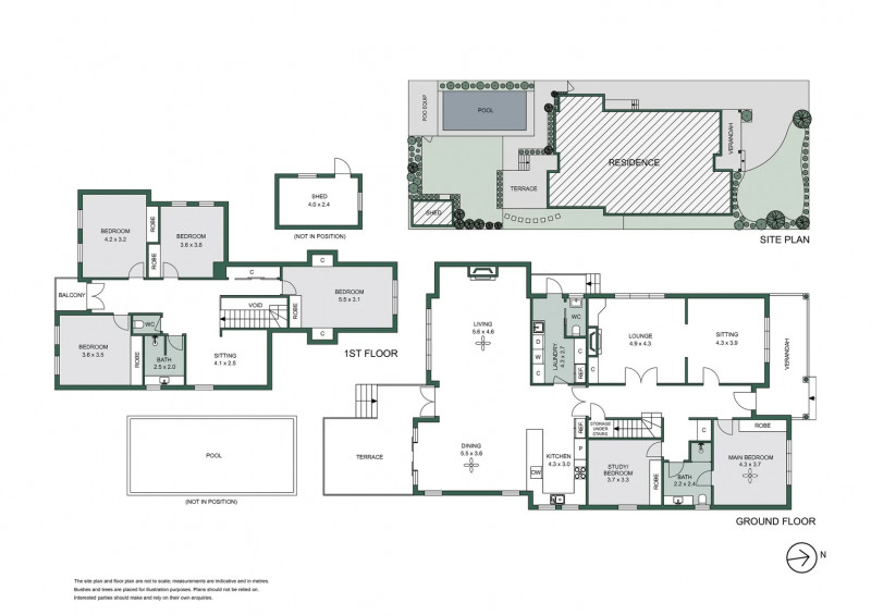
First Impression
Property is in a great area, I'm a big fan of Littlewood St, however, orientation isn't ideal for natural light.
There is a good sapce at the back, but the floorplan doesn't feel like it flows well enough for a family and something I would be looking to change down the track.
Great downstairs main at the front with ensuite but in this price range the robe space doesn't feel enough.
I have this just into the early $3,000,000s rather than the mid $3,000,000s that they are seeking.
Things we love
- Great Backyard
- Pool
- Quality Street
Things to consider
- South Facing Backyard
- Floorplan
- Tired

Buyers Agent













