First Impression
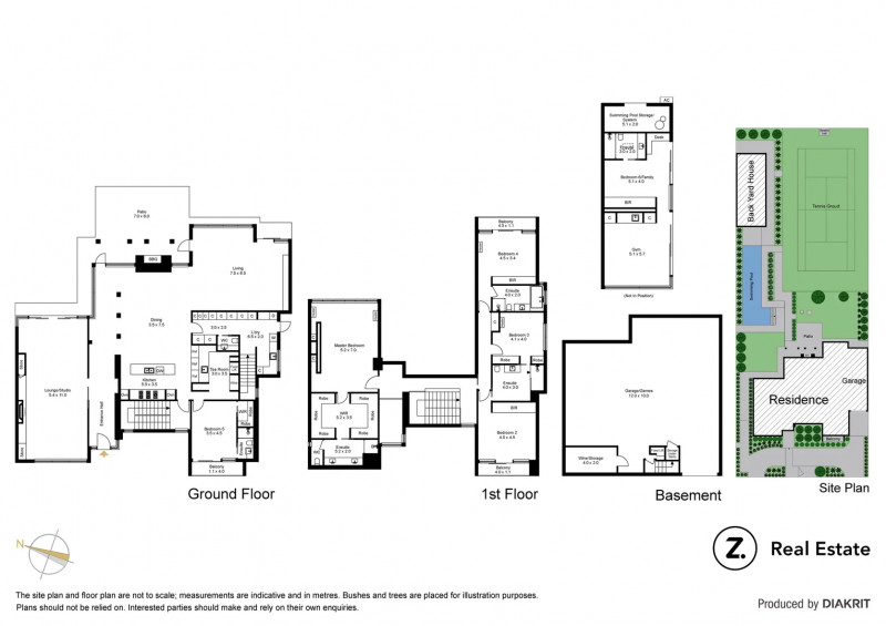
This is a good, well-rounded home in an elite Manor Street pocket. Strong land, good scale and a layout that works nicely for family living and entertaining. It presents well without quite having that top-end wow factor you see in the very best homes nearby.
Position is solid but on the slightly less preferred side of the street, and the basement garage is quite tight to get in and out of which is worth noting day to day.
Overall, a quality offering in a blue-chip spot that does a lot right, just not quite at the very top of the tree.
Things we love
- Tennis Court
- Land Component
- Location
Things to consider
- Tight entry garage
- orientation for afternoon sun
- price

Buyers Agent










