First Impression
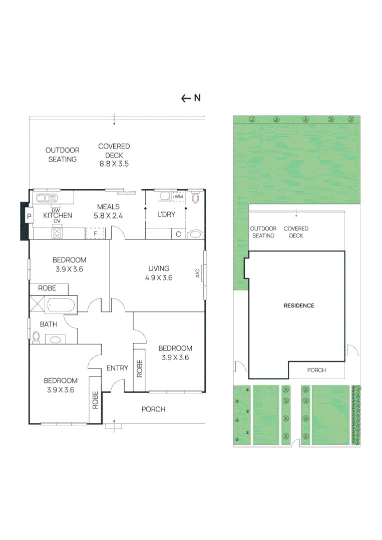
Good family home with lovely period details. Sizeable living space and ready to move in with the opportunity to value add in the future. The land size is small for the area and there is no off-street parking. Location is quiet but slightly removed from amenities and fixed transport. Recent sales at 42 Holroyd St Coburg for $1,261,745 and 18 Liverpool St Coburg for $1,260,000 would justify the quote.
Things we love
- Appealing period facade
- Neat and tidy and ready to move in
- Opportunity to value add
Things to consider
- Living and meals areas separate
- Land size small for neighbourhood
- No off-street parking

Buyers Agent













