First Impression
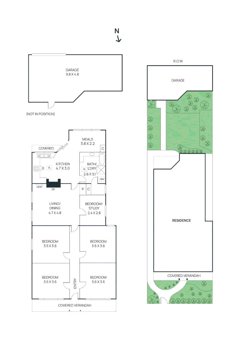
Opportunity to purchase in very desirable Westgarth location. Tired and in need of extensive work. South facing yard leads to double garage off ROW. Currently four bedrooms in classic DF 2x2 floorplan with high ceilings. Zoned to Northcote High School. 119 Mitchell St, Northcote sold on February 21 for $1,930,000.
https://www.domain.com.au/119-mitchell-street-northcote-vic-3070-2020556629
Things we love
- Classic Victorian facade
- OSP too double garage
- Stand out Westgarth location
Things to consider
- Extensive work required
- South facing rear

Buyers Agent












