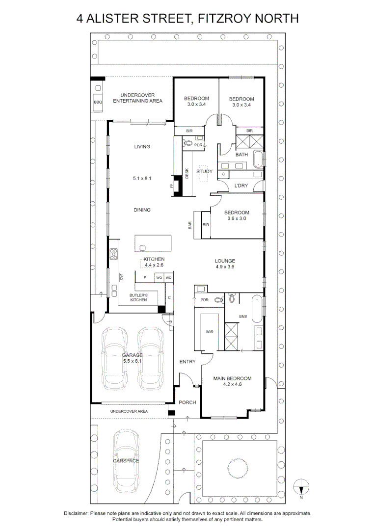
On first impressions, you would be keen to consider this home. It offers 4 bedroom accommodation, 2 bathrooms and dual garaging. Lovely renovation and ready to move. As you research further, some things to consider and possibly "turnoffs" ! The property sits across the road from a big power station. The property is removed from main shops and cafes that Brunswick East and Fitzroy North have to offer. The floorplan is a little unusual with 3 of the bedrooms next to the main living area. These considerations need to be taken into account if you are going to spend in excess of $3,400,000. Recent sale at 7 Alister St for $3,150,000 would need to be considered, but that house was on larger land and more room to value add. It was not across from Power Station and was 655sqm.
- Nice finish throughout
- Good accomodation
- Quiet Location
- Across from power station
- Small land
- Removed from the action

Buyers Agent










