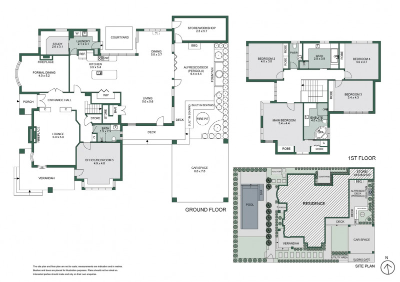
First Impression
Gorgeous home all around. Whilst its on the corner of New St, it doesn't feel like you are on a main road.
When inside, a flood of natural light greets you.
Generous living spaces with a great open floor plan out the back.
Think that the quote is right on the money with mid $4,000,000's being very attainable with the block in excess of 780sqm a lot of living, great for families.
Things we love
- Beautiful Period Features
- Pool & Outdoor Flow
- Land Size
Things to consider
- Corner of Main Road
- Internal Floors are Tired
- Noise

Buyers Agent












