This is one of those Brighton villa units that actually gives you what people say they want but rarely get.
Tucked away at the rear of a boutique group on Manor Street, the position alone does a lot of the heavy lifting. You are walking distance to the beach, Church Street and transport, which in this pocket is basically the whole appeal of Brighton lifestyle living.
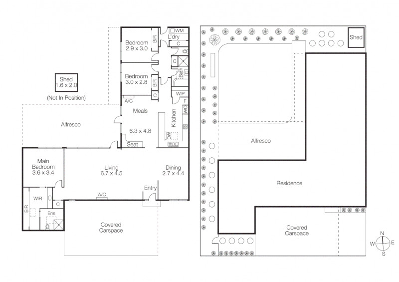
The big win here though is the land component. At around 395sqm, this is oversized for a villa unit and immediately separates it from the typical low value, high density product you see in the area.
It actually feels more like a downsizer house alternative than a unit, especially being single level with proper indoor outdoor flow.
Inside, it has been renovated well and it shows. High ceilings, loads of natural light and a proper connection out to a north facing garden and entertaining area make it very liveable day to day.
The kitchen and bathrooms are strong without being over the top, and the floorplan works with good separation between the main bedroom zone and the secondary bedrooms.
Where I’d be a bit critical
You are still buying a villa unit. No matter how good it is, there is a ceiling on capital growth compared to standalone homes in Brighton, especially in that price bracket.
The layout, while functional, is still dictated by the original footprint so it does not have that big open modern scale you get in newer builds. Some buyers will feel that.
And although being at the rear gives you privacy, you are still part of a group which for some downsizers is a compromise they are trying to avoid.
Overall
This is a really strong option for someone who wants Brighton, wants land, wants single level living and does not want the hassle of a full house.
The land size is the key here. That is what protects the value and makes it stand out in what is otherwise a pretty crowded villa market.
If you are weighing it up, this is more about lifestyle and ease than chasing absolute upside.
- Land Component & Location
- Single Level & Orientation
- Renovated
- Body Corporate
- Car Parking Limited

Buyers Agent











