First Impression
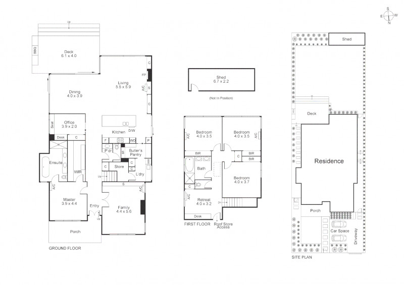
This is a proper family home that’s been done really well. Renovation is high quality, layout works, and the indoor outdoor connection with the deck and backyard is exactly what buyers want in this pocket. It’s got a nice balance to it and feels like a complete home.
Land at around 600sqm is strong for Hampton and gives it that bit of presence, so it stacks up well on paper.
Upstairs is solid but it can feel a touch contained which just takes a bit off the overall flow. Location is good, but, not that absolute top tier Hampton address.
Very easy to live in, ticks a lot.
Things we love
- Renovated well
- Land
- Internal Layout
Things to consider
- Small Living Space upstairs

Buyers Agent













