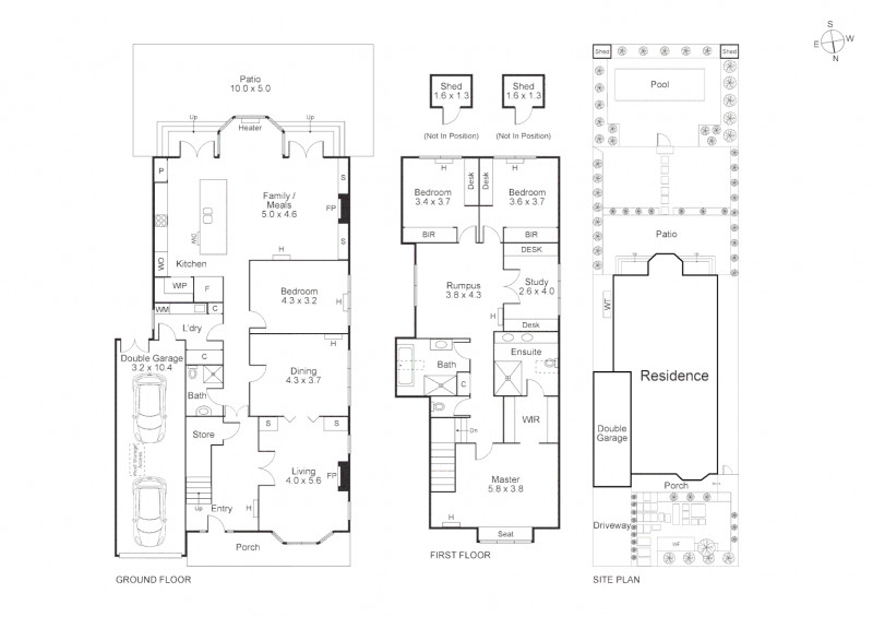
First Impression
A really good, honest family home that you can move straight into. Beautifully renovated with strong indoor outdoor flow and the pool/entertaining zone is a big tick for Hampton buyers.
Upstairs is the only watch, it feels a touch tight and a bit claustrophobic which takes a bit off the overall balance.
Retreat Road is solid but not top tier, so it’s one where everything stacks up, just not quite at that elite level.
Very liveable, very saleable, just make sure you’re buying it right.
Things we love
- Renovation
- Good for Entertainment
- Pool
Things to consider
- Orientation - Although light
- Upstairs is tight

Buyers Agent













