First Impression
Prime Brighton position with real presence, feels like Golden Mile living without being right on top of it.
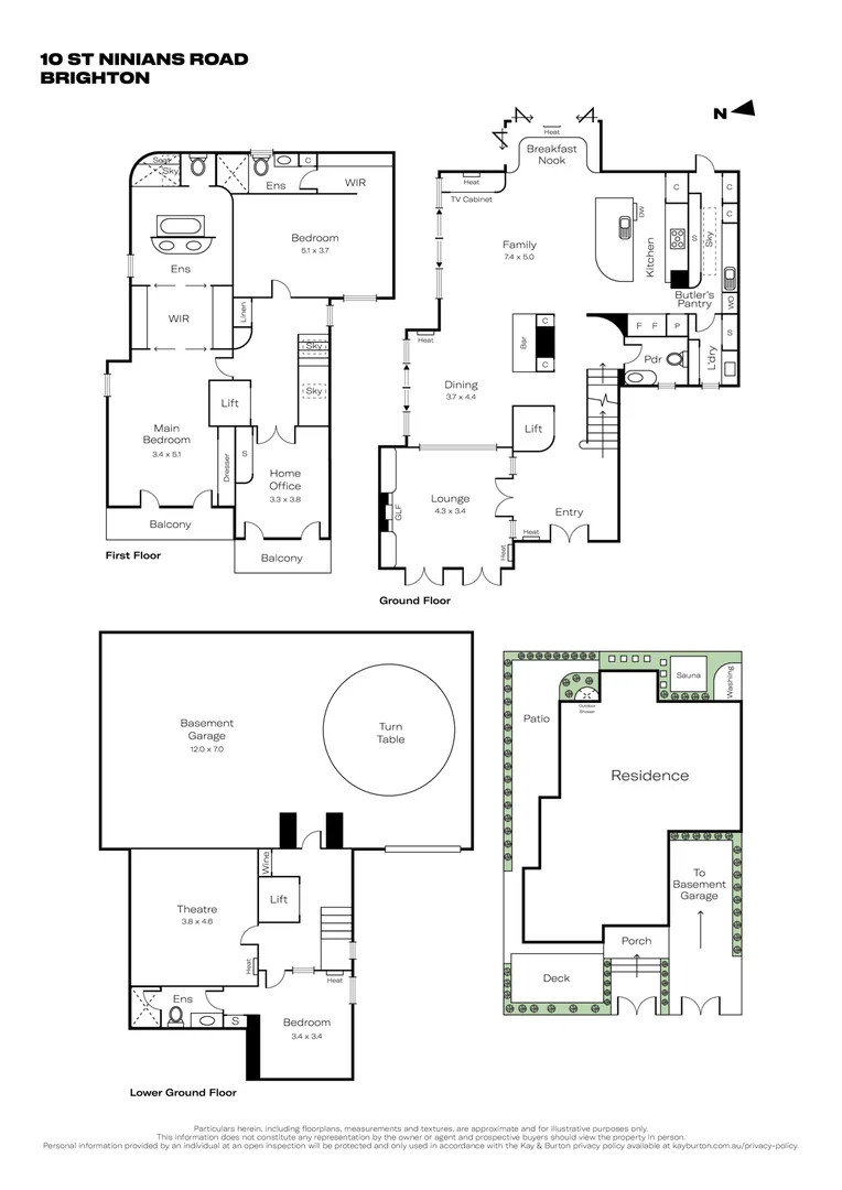
Inside is the play. Full designer spec over three levels with lift, cinema, gym and sauna. It’s polished, high end and very considered, more luxury lifestyle than traditional family home.
Land is tight around 280sqm so you’re not getting much outdoor scale, this is all about internal finish and ease.
Big price shift from its last trade so you’re paying for the upgrade.
Turnkey, statement buying in a top pocket, just depends how much you value land vs lifestyle.
Things we love
- Increidble Finishes
- One of the best streets in Brighton
- Basement
Things to consider
- Small Land component
- No outdoor space

Buyers Agent











